消防应急疏散指示系统在某工业厂房项目的应用
杨兴媚
江苏安科瑞电器制造有限公司 江苏江阴
【摘要】:消防应急照明和疏散指示系统由应急照明控制器、应急照明集中电源和消防应急灯具(消防应急照明灯具和消防应急标志灯具)等几部分组成。该系统配合火灾报警控制器使用,在火灾时刻,能够准确给出安全的疏散指示路径,打开消防应急标志灯的指示方向以及消防应急照明灯,帮助建筑内的人群选择逃生疏散路线,指引安全逃生方向。我司系统采用17寸工业平板电脑、Windonws7系统,可支持联动报警、系统监控、故障报警、自检、备电、记录存储与查询、导光流、权限控制等多项功能,具有集中控制、灵活度高和可靠性强等优点,适用于范围较大、内部空间较广等特点的工业厂房项目。
【关键词】:集中电源;集中控制;A-C-A100;消防应急照明和疏散指示系统;
0 前言
随着经济、科技的迅猛发展,人们开始追求建筑设施本身的人性化、现代化,大量高层楼宇、特大型建筑、地下设施的涌现,使得通道长、分支多、更复杂,同时也伴随着安全问题的出现。随着人们安全意识的提高,本着以人为本、生命安全为重的想法,对于人员密集、疏散距离长、疏散通道多、拐弯多、环境复杂、内部空间大的建筑,采用传统的疏散指示方式不能及时对灯具进行维护管理,发生火灾时大面积失效造成人员伤亡。为了避免造成群死群伤,实施迅速合理的应急疏散指示系统,集中控制型消防应急照明和疏散指示系统应运而生。本系统可准确实现对各应急灯具的实时监控和控制、日常24小时管理维护,保证系统运行正常,在发生火灾时准确、迅速的引导人员到达安全区域,减少人员伤亡。
1. 项目介绍
本项目为厂房建筑,总用地面积66683平方米,总建筑面积约为59526平方米,生产车间为丁类厂房,具有单防火分区大、内部空间较大、单区域灯具较少的特点。本司提供厂房消防应急照明和疏散指示系统的产品,要求各场所内应急疏散标志灯具采用集中控制型疏散指示逃生系统,当应急发生时,可通过火灾监控系统的烟感探头等检测到具体的火灾位置,并以通信方式将指令传输至本系统的主机,以控制场所内疏散标志的箭头指向,确保人员沿正确的方向逃生及疏散。
2. 现场项目应用产品简介
2.1 消防应急照明和疏散指示系统
消防应急照明与疏散指示系统由应急照明控制器(简称控制器、主机)、应急照明集中电源(简称集中电源)和消防应急灯具(简称灯具)(消防应急照明灯、消防应急标志灯,简称照明灯、标志灯)等几部分组成。因本项目产品过多,此处只介绍主要产品。
控制器是消防应急照明和疏散指示系统的主机。控制器通过总线网络实时监控各个终端,可以实时上报每个设备及灯具故障。在险情发生时,自动将信息指令发布到每个终端,终端收到指令之后开始工作,如频闪、开、灭灯等工作,实时指示安全的疏散路线。
集中电源是安装在建筑物内的备用集中式应急电源装置。当建筑物发生火灾、事故或其他紧急情况时,集中电源可以为照明灯、标志灯提供应急供电,保证消防应急照明和疏散指示系统正常工作。
照明灯为人员疏散逃生提供亮度支持。其安装方式有壁挂式、吸顶式、嵌顶式。
标志灯为人员疏散逃生提供方向指示。其安装方式有壁挂式、吊挂式、地埋式。
2.2 A-C-A100控制器
2.2.1 产品图片及技术参数
图1 A-C-A100产品图片及技术参数
2.3 集中电源
2.3.1 A-D-0.5KVA-A200L产品图片及技术参数

图2 A-D-0.5KVA-A200L产品图片及技术参数
2.3.2 K-D-XKVA-1产品图片及技术参数
图3 K-D-1KVA-1产品图片及技术参数
2.4 灯具
当发生火灾时,消防应急标志灯具为人员提供应急疏散的指示方向,左向、右向和双向的标志灯具一般用于指示疏散的走向,无方向的标志灯具一般用于指示安全出口、楼层和避难间,其安装方式为壁挂式、地埋式。
消防应急照明灯具为人员疏散逃生提供照明,其安装方式为壁挂式、嵌顶式、吸顶式。
本产品广泛应用于机场、大型商场、写字楼等公共场所安全通道出入口、走廊拐角处。
表一
3 现场应用
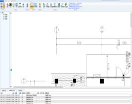
3.1 系统组网图
图3 系统组网图
3.2 现场部分系统图
本项目采用的方案是,灯具到集中电源通常二总线用法,集中电源到琴台控制器中间使用CAN总线接法,由应急照明控制器至集中电源和分配电装置采用手拉手接线时,通讯线长度不大于2000m,自由拓扑接线时,通讯线长度不大于500m。
图4 总平面图
3.3 系统软件运行

图5系统运行主界面 图6 灯具配置界面
包含工具栏、平面展示、图层列表、状态栏, 可以查看所有灯具状态与数量
可以直观的查看监控设备的运行状态,并根据
状态栏的现实内容直接切换至故障具体位置
图7 事件记录界面
可查看历史操作、故障信息,可按日期进行查询
3.4 设备现场应用照片
图8

图9 图10
4.结束语
随着我国经济的快速发展,科技的进步,建筑现代化及建筑消防的重视程度也随之提高,本文分析了本司生产的消防应急照明和疏散指示系统在工业行业的应用,充分展现了在该类项目的组网中简单、灵活、稳定、低成本的优势。通过消防应急疏散系统能够解决传统消防应急疏散指示系统无集中控制、指示方向固定、疏散线路不能改变、指示效果不理想、安全性能低等问题。
安科瑞电气着力打造各类火灾安防系统的产品,在满足国家行业标准要求的前提下,为各类建筑提供可靠、安全、节能的消防方案与消防产品,为防火减灾、保障人民生命财产安全方面尽一份绵薄之力!
参考文献
[1].安科瑞电气股份有限公司产品选型手册.2018.01
[2].GB50116-2014 建筑设计防火规范[S].
[3].GB17945-2010《消防应急照明和疏散指示系统》[S].
[4].GB51309-2018《消防应急照明和疏散指示系统技术标准》[S].
作者简介:杨兴媚,女,现任职于江苏安科瑞电器制造有限公司,手机:18860995115,QQ:2881068602,邮箱:yangxingmei@email.acrel.cn




扫一扫添加微信